Price £220,000 Under Offer
  • Waterfront Views
  • Two Double Bedrooms
  • Large Balcony
  • Short Walk to Town Centre
  • Fully Fitted Kitchen
  • Secure Allocated Parking
  • Two Bathrooms
  • Third Floor
  • No Onward Chain

Well presented third floor two bedroom apartment available for sale in the Orwell Quay development, situated on Ipswich's stunning Marina.

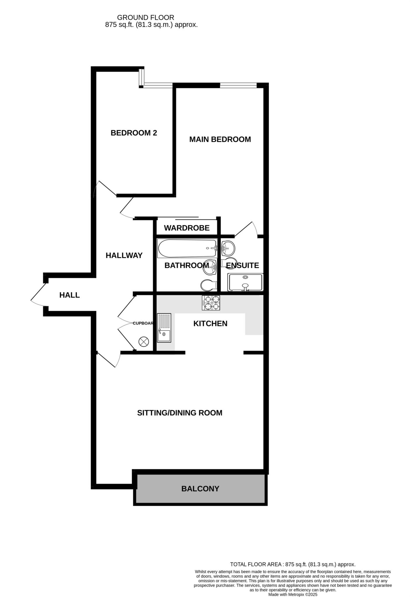
The property comprises large entrance hallway, spacious sitting/dining room with sliding doors leading out to the West facing balcony which offers stunning river and sunset views. Well appointed fully fitted kitchen including integrated oven, hob and extractor plus space for a washing machine and fridge/freezer.

Large main bedroom with ensuite shower room plus built in wardrobe with sliding mirrored doors.

Second double bedroom, main bathroom and handy airing cupboard storage.

The property further benefits from secure allocated parking, secure entry system and lift access.

The apartment building is a short stroll from a vast array of fine dining restaurants and bars, cafes, shops and the main Ipswich Town Center. In addition it is within easy walking distance to Ipswich Railway Station, with fast train links to London Liverpool Street in 1hr. In addition the A12/A14 are easily accessible leading to either the Suffolk Coast or Essex and beyond.

PLEASE NOTE: This building has a valid EWS1 Certification.



Kitchen - 6'3" (1.91m) x 12'0" (3.66m)

Living/Dining Room - 12'6" (3.81m) Min x 18'7" (5.66m)

Bedroom One - 9'4" (2.84m) Min x 13'6" (4.11m) Min

Bedroom Two - 9'0" (2.74m) x 12'8" (3.86m) Min

Bathroom - 7'2" (2.18m) x 6'7" (2.01m)

Ensuite - 6'7" (2.01m) x 5'5" (1.65m)



Council Tax
Ipswich Borough Council, Band C

Ground Rent
£200.00 Yearly

Service Charge
£2,744.00 Yearly

Lease Length
101 Years

Notice
Please note we have not tested any apparatus, fixtures, fittings, or services. Interested parties must undertake their own investigation into the working order of these items. All measurements are approximate and photographs provided for guidance only.

Floor Plan
EER Chart

The Energy-Efficiency Rating is a measure of a home's overall efficiency. The higher the rating, the more energy-efficient the home is, and the lower the fuel bills are likely to be.

Utility Supply Type
Electric Mains Supply
Gas None
Water Mains Supply
Sewerage Mains Supply
Broadband FTTP
Telephone Landline

Other Items Description
Heating Electric Heaters
Garden/Outside Space No
Parking Yes
Garage No

Broadband Coverage Highest Available Download Speed Highest Available Upload Speed
Standard 8 Mbps 0.9 Mbps
Superfast 110 Mbps 20 Mbps
Ultrafast 1000 Mbps 1000 Mbps

Mobile Coverage Indoor Voice Indoor Data Outdoor Voice Outdoor Data
EE Enhanced Enhanced Enhanced Enhanced
Three Enhanced Enhanced Enhanced Enhanced
O2 Enhanced Enhanced Enhanced Enhanced
Vodafone Enhanced Enhanced Enhanced Enhanced

Broadband and Mobile coverage information supplied by Ofcom.


marker icon